Építsünk modern székely házat!

2015-12-08

Építsünk modern székely házat!

A kész tervek megszerzésének lépései

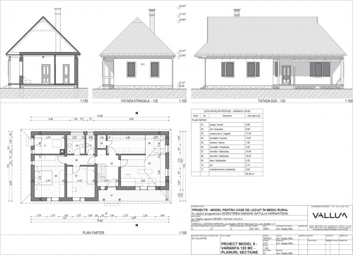
A modern kor elvárásainak megfelelően, de a hagyományos székely építészet elemeit felhasználva építkezhetnek azok, akik igénybe veszik a Hargita Megye Tanácsa által koordinált Modern Székely Ház programot. Mint arról korábban beszámoltunk, a programban elkészült kilenc mintaterv megvalósíthatósági tanulmánya – ezek tájspecifikusan tükrözik Gyergyó (1), Csík (4), Kászonok (2) és Udvarhely (2) vidékének jellegzetességeit –, illetve a 9-es számú, Csík területre tervezett mintaház kivitelezési projektje. Ezek a projektek tartalmaznak három különböző szerkezetű és beosztású mintaházat, lehet például földszintes 100–120 m2, vagy akár beépített tetőszerkezetű is. A csomag tartalmazza az építészeti, statikai és gépészeti (víz, fűtés, villany) terveket.

A kiválasztott tervvel kapcsolatosan fel kell venni a kapcsolatot a készítővel, mivel az elméleti helyszínre készült, ezért az igénylő által kiválasztott telekre kell adaptálni. Ez maga után vonja a terv bővítését és helyszínre szabását, amibe beletartozik az alapozási terv, helyszínrajz, betájolási rajz és esetleges más dokumentáció is, illetve mindezek költségét.

A tervek megtekinthetők az epitettorokseg.ro honlapon, illetve nyomtatott formában a csíkszeredai megyeházán Hargita Megye Tanácsa főépítészi hivatalában.

A 9-es számú mintaház

A leendő tulajdonosnak az alábbi dokumentációt kell beszereznie:

A helyi önkormányzattól a telekre vonatkozó urbanisztikai bizonylatot. Ebben a dokumentumban megnevezik az építkezési engedélyhez szükséges engedélyeket. Ezek értelmében lehet továbblépni a tervet illetően, megfelelve a bizonylatban előírtaknak.
A kiválasztott területre vonatkozó topográfiai felmérés elkészítése szakember által.
Talajtanulmány (geotanulmány) elkészítése szakember által.
A terv elkészítése után a kért engedélyek.

Ha nem a 9-es számú tervet választja az ügyfél, elhelyezkedéstől függően (Csík, Udvarhely, Gyergyó) szükséges a tervek kidolgozása az építkezési engedélyhez építészeti, gépészeti és statikai szempontból. A tetőtér beépítése vagy a pince kialakítása esetén meg kell szerezni a statikai szakvéleményt.

– A Hargita Megye Tanácsánál kifejtett munkánk egyik legfontosabb célja a fiatalok itthon tartása, ennek érdekében több síkon is azért dolgozunk, hogy számukra élhető körülményeket biztosítsunk. A program célja, hogy modern székely házban teremtsenek otthont a fiatalok, illetve a kész tervekkel is segítsük a házépítés folyamatát. Most már konkrétumokkal is tudunk szolgálni a terv megszerzéséhez, és remélem, minél többen élnek a lehetőséggel – nyilatkozta Borboly Csaba, Hargita Megye Tanácsának elnöke.

Ez az oldal cookie-kat használ. Az oldal böngészésével Ön elfogadja a cookie-k használatát. Bővebben